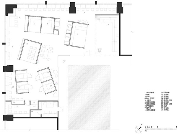
设计师以盒子设计概念,分别用不同材质的盒子把空间巧妙的划分出来,在盒子的摆放上充分的考虑到了光线和动线。
"我们的工作,就是从视觉上去改变这个曾经改变我们的世界" |
"站在客户的立场,用专业和激情使客户在有限的预算内实现利益最大化" |
"设计是一种职业,更应该是一种兴趣,设计作品不只是为了让客户满意,更应该让自己满意" |
"施工是一个拷贝不走样的游戏,除了工人的素质,还有管理者的决心" |
"设计是创造性的工作,设计是有价值的,设计是帮你省钱、赚钱" |
"我们的工作,就是从视觉上去改变这个曾经改变我们的世界" |
"站在客户的立场,用专业和激情使客户在有限的预算内实现利益最大化" |
"设计是一种职业,更应该是一种兴趣,设计作品不只是为了让客户满意,更应该让自己满意" |
"施工是一个拷贝不走样的游戏,除了工人的素质,还有管理者的决心" |
"设计是创造性的工作,设计是有价值的,设计是帮你省钱、赚钱" |
更多案例返回列表>>